Okovi za vrata (Pvc - Šarke)

Početna / Okovi za vrata/PVC/Šarke/20212

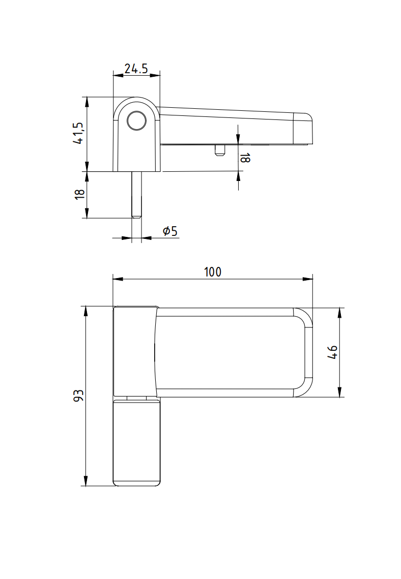
Šarka za PVC vrata - 20212

Kratak Opis

  • Nosivost 100kg
  • Mogućnost podešavanja u svim pravcima
  • Šablon za tačno pozicioniranje
  • Univerzalna spojnica (leva i desna vrata)
  • Napravljna od legure Aluminijuma
  • Plastifikacija organskim bojama
Boje:
Opis Proizvoda
Šarka za vrata ovog tipa se primenjuje kod ulaznih vrata napravljenih od PVC profila, gde se zahteva visok kvalitet i otpornost na vremenske uslove. To se postiže korišćenjem kvalitetne legure aluminijuma, koja se nakon mehaničkih obrada površinski štiti - plastifikacijom (vrsta farbanja). Postoji mogućnost farbanja u nekoliko standardnih boja: bela, crna, braon i antracit.

Odlikuje se modernim dizajnom i funkcionalnošću. U internoj laboratoriji je izvršeno testiranje na ciklus od 200 000 otvaranja i zatvaranja, sa dodatom težinom od 120 kg.
Tehničke informacije
PDF Uputstvo 20212
Ugradnja spojnice
Podešavanje šablona
Način pakovanja
Pojedinačno 1 kom u kutiji
Zbirno u kutiji po 20 kom

O nama

Firma VABIS je nastala 1987. godine u Aleksincu. Velikim angažovanjem vlasnika firme i svih radnika, od male zanatske radionice razvili smo fabriku sa 80 zaposlenih.

Novosti

Ukoliko želite da Vas obaveštavamo o najnovijim proizvodima i promenama upišite email adresu ispod